【实景案例】沿海赛洛城50平老破小_二手房改造实景案例
-
日期:2025-11-26
-
点击:15
今天带来的案例是鑫友装饰设计的实景案例解读,房子位于沈阳市,本案例是一个小户型二手房改造。业主对于装修上要求比较多,是一个年轻小姐姐。
第一:要求有强大的储物功能,就是需要非常多储物柜子。
第二:要求卫生间干湿分离 。
第三:业主喜欢做饭 ,厨房一定要大要做饭舒服。
主要围绕着业主这几点要求进行整体改造。
房屋信息
户型:一居室
使用面积:50㎡
房屋位置:沈阳市
类型:二手房翻新
#本案设计师张悦

用有限空间做无限设计 成就梦想之家
设计师张悦
毕业于沈阳建筑大学
IDA设计协会会员
中国建筑装饰设计协会注册室内设计师
2016年美化家居设计大赛优秀作品奖
擅长风格,现代,新中式,简美,欧式,轻奢,北欧等
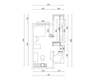
#户型图

户型缺点:
小户型没有设立玄关的位置
整体户型是一个开放式的客厅卧室,没有隐私性
厨房外有一个小阳台,很不实用,浪费
卫生间规划不合理
改造亮点:
进门处打造柜体,增加了玄关区,增加了收纳。
厨房外的阳台封闭,把洗衣机嵌入橱柜,阳台位置方便晾衣服。
卫生间非承重墙砸掉,重新设计,干湿分离,改掉了不实用的布局,增加了面积。
外部空间通过软隔断,纱帘进行分割,保证了隐私性,做了空间分区。
#改造前房屋原貌

装修的过程也并非一帆风顺,起初我们已经确定一版设计方案,冰箱是在厨房镶嵌在衣柜里,但是老房子结构特殊,看的前面的楼的房子不是承重墙可以砸,我们实际施工发现我们这个楼中间的墙砸不了。只能砸一半,老房子承重结构不一样,所有方案全部推翻重来,这对于设计师来说无疑是晴天霹雳!!

时间紧任务重 重新开始设计,50平的房子要容纳干湿分离卫生间,大厨房,晾衣区,1米梳妆台,沙发床,双人床,大储藏空间等等。

经过和业主的反复沟通,几个日夜的加班,终于确定下了新的方案,可以顺利施工了,代价就是两个大大的黑圆圈,对于爱美的女设计师绝对是“最大的奖励”,不过这一切也都是值得的,业主的赞誉让这一切都变得美好起来。

开始施工,水电改造,砌墙贴砖木工,油工。整体基础施工虽有小磕小绊在我们专业团队的配合和业主及时沟通下,都顺利的进行下来。接下来重中之重主材安装,灯具安装之后开始安装最费心思的定制柜,也是最容易出错的部分,全部都是镶嵌式,不能有一点尺寸上的差错。

很快主材安装全部搞定。接下来的家具家电都很顺利。软装搭配的搭配上业主也十分的满意,可能女设计师更能懂女客户,一套房子下来,就像西天取经一样,会遇到不同的问题困难,每一个都解决才能取得最后的圆满的效果。
下面我们来看看改造后与改造前的对比吧。
#玄关

改造前(点击图片放大看细节)

改造后(点击图片放大看细节)
#客厅

改造前(点击图片放大看细节)

改造后(点击图片放大看细节)
#厨房

改造前(点击图片放大看细节)

改造后(点击图片放大看细节)
#卧室

改造前(点击图片放大看细节)

改造后(点击图片放大看细节)
#卫生间

改造前(点击图片放大看细节)

改造后(点击图片放大看细节)

改造前(点击图片放大看细节)

改造后(点击图片放大看细节)
当前位置: