【实景案例】鑫友装饰锦绣观邸104平三居室案例解析
-
日期:2025-11-28
-
点击:11
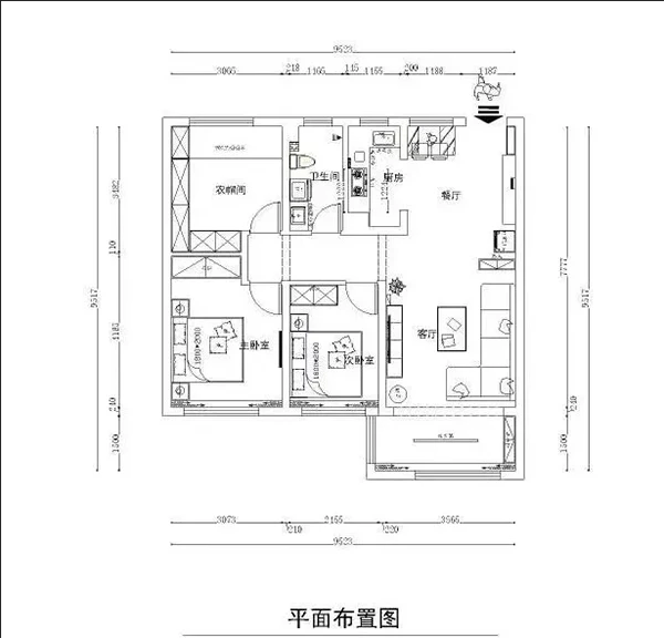
今天带来的案例是鑫友装饰设计的实景案例解读,房子位于沈阳市,客户要求开放式厨房,冰箱不放厨房内,卫生间要求放浴屏做到干湿分离,需要衣帽间,现代简约风格。
#户型图


平面布局图
1. 开放式厨房,厨房门口做定制柜子,更多收纳空间
2.三室将北卧改成衣帽间,满足女主人衣帽间要求
3.采用边棚金属条做棚面,将客厅与餐厅分割开来
4.门口鞋柜留出坐塌位置,收纳空间更大
#玄关

▲ 实景图
#客厅

▲ 实景图

▲ 实景图

▲实景图
#餐厅

▲ 实景图
#厨房

▲实景图

▲ 实景图
#卧室

▲ 实景图

▲ 实景图

▲ 实景图

▲ 实景图
当前位置: