【实景案例】鑫友装饰孔雀城100平三居室_现代极简风格案例解析
-
日期:2025-12-29
-
点击:3
今天带来的案例是鑫友装饰设计的实景案例解读,房子位于沈阳市,客户需求:
#本案设计师滕凯伦

设计师滕凯伦
从业10年,毕业于沈阳建筑大学,
拥有高级室内设计师资格证CIDA,
软装设计师资格证,CAD等级证,
擅长极简风格,轻奢风格,意式风格等
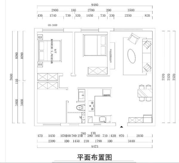
#户型图


#玄关

▲ 实景图
#客厅

▲ 实景图

▲ 实景图

▲实景图
#餐厅

▲ 实景图
#厨房

▲实景图

▲ 实景图
在厨房的剩余面积也充分利用,将洗衣机嵌入其中,这样可以节省出一个空间。
#卧室

▲ 实景图

▲ 实景图
次卧延续主卧的统一风格,全屋没有过多的修饰,以简单实用为主,百搭的配色,方便以后的软装改造。
#卫生间

▲ 实景图

▲ 实景图
当前位置: