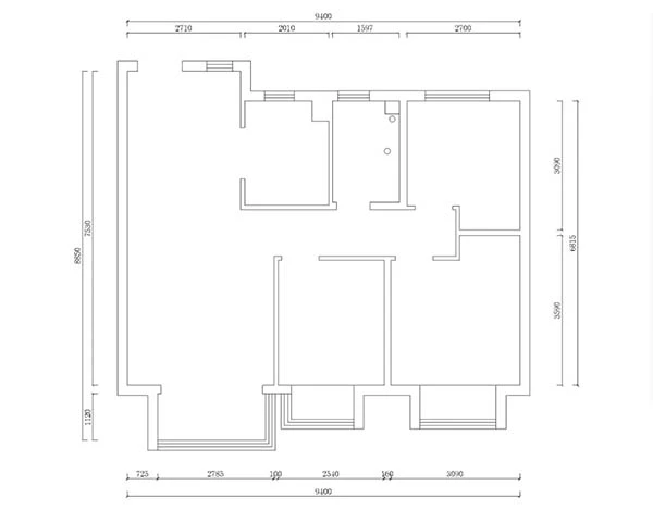
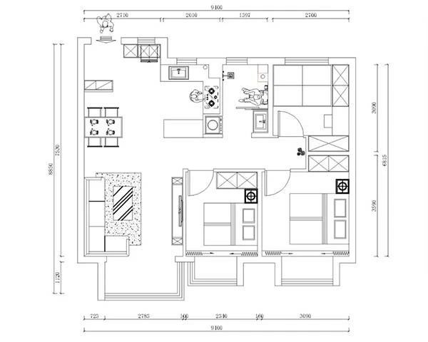
【案例解析】华发行知坊95平_户型案例解读
-
日期:2025-12-31
-
点击:1







手机扫码
日期:2025-12-31
点击:1







版权所有:沈阳鑫友装饰 未经许可严禁拷贝或镜像 辽ICP备2023001633号-1
技术支持: 乐后屋装企营销系统