【案例解析】华发行知坊52平_现代风格户型案例解析
-
日期:2026-01-03
-
点击:5


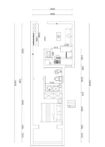
设计思路:空间小没有一个独立的客厅可以提供给客户一个家的定义,然后就是客户又是单身女孩子,清新脱俗一些更好,有一个独立摆放沙发的地方,也可以当做餐厅。也可以休息,绿植作为装饰也可以愉悦身心,卧室空间小利用阳台做晾晒区,再就是女孩子愿意梳妆打扮,阳台位置可以做成梳妆台。也可以作为书桌实用,另一侧可以摆放花花草草。
#玄关

玄关设计通顶衣柜+矮柜的组合,强大的储物空间,是小户型的一个必须做的一个课题,这样设计就很好的解决了这个问题,并且用两组不同而柜子,结合玄关的位置,面积,是一种十分时尚的组合,女孩子的家必须要有颜值。
#客厅



客厅的设置不仅能够让空间有家的完整性,而且还兼具了餐厅的功能,平日里看个剧,吃个饭都是可以在这个空间实现的。
#厨房

厨房虽小但是对于一个人使用也是足够了,按照业主的需求冰箱放在厨房中,同时留出了一定空间能够方便操作,玻璃拉门足够通透,让空间显得不那么狭小。
#卧室



卧室阳台位置正好可以有空间做一个化妆桌,方便业主平时梳妆打扮,办公放松,充分的利用每一处空间。
#卫生间

当前位置: